EBO

Eisenbahn-Bau- und Betriebsordnung

Vom 8.5.1967

Zuletzt geändert am 5.4.2019

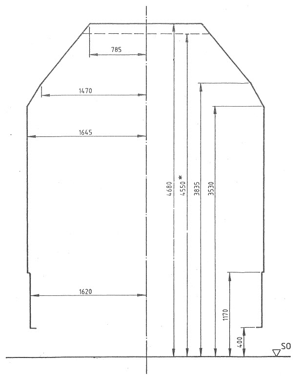
Anlage 8

(zu § 22)



Maße in Millimetern


Bezugslinie G 2

für Fahrzeuge, die nicht im grenzüberschreitenden Verkehr
eingesetzt werden

Bild 1







* Zulässige Höhe für Fahrzeugteile, aus denen Dampf ausströmen kannUnterer Teil der Bezugslinie
Siehe Bilder 2 und 3


Bild 2

Bezugslinie für die unteren Teile der Fahrzeuge







Bild 3



Bezugslinie für die unteren Teile der Fahrzeuge, die nicht über Gleise fahren dürfen, deren Einrichtungen nach der Grenzlinie für feste Anlagen gemäß Anlage 1 Bild 2 Buchstabe b bemessen sind (Ablaufberge, Rangiereinrichtungen).